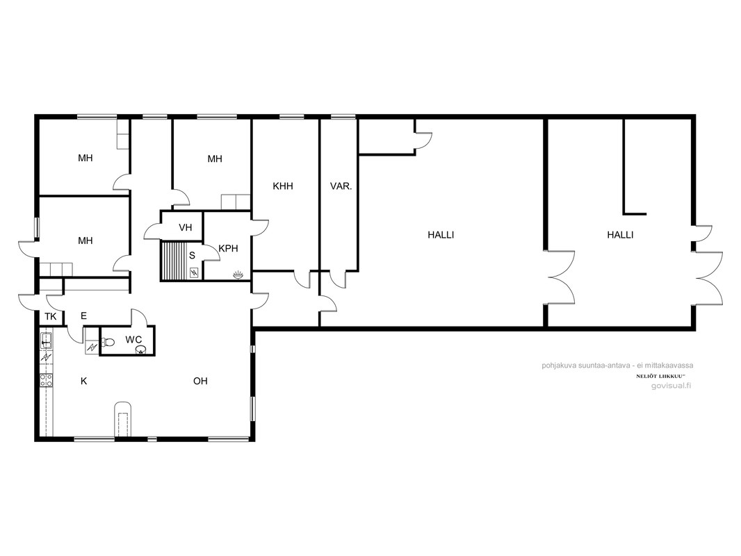
Omakotitalo 4h+k+vh+kph/s+wc+hallit
Kuhmalahdentie 1173, Sahalahti, Kangasala
Hinta (Tarjouskauppa)
98 000 €
Koko
148 m² / 328 m²
Vuosi
1989
NELIÖT LIIKKUU!
Tässä kohteessa saat yhdistettyä kodin ja työn tai harrasteet näppärästi saman katon alle. Tilava reilun kahden hehtaarin tontti tuo myös mahdollisuuksia monenlaiseen.
Rakennuksen asuintilat ovat 148 m2 ja työtilat 180 m2, joten tilaa riittää mukavasti.
Tilat sijaitsevat yhdessä tasossa, joten toimiminen on helppoa. Lämmitys on sähköllä sekä puulla. Makuuhuoneita on kolme, jonka lisäksi löytyy tilava olohuone ja avara keittiö.
Kylpyhuone ja sauna on saneerattu 2005-2006 aikana. Tervetuloa tutustumaan tähän kokonaisuuteen.
Sovi oma esittelysi joustavasti!
Johanna Toukola
Ylempi Kiinteistönvälittäjä YKV, LKV, KiAT
044 078 9657
johanna.toukola@neliotliikkuu.fi
| Kohdenumero | 20601452 |
|---|---|
| Sijainti | Kuhmalahdentie 1173, 36420 Kangasala |
| Huoneistoselitelmä | 4h+k+vh+kph/s+wc+hallit |
| Huoneita | 4 h |
| Tyyppi | Omakotitalo (kiinteistö) |
| Asuintilojen pinta-ala | 148 m² |
| Pinta-alojen lisätiedot | Asuinosa n.148m2 ja halliosa n.180m2 (10mx18m). Ei tarkistusmitattu. Asuinpinta-ala on myyjän ilmoituksen mukaan n.148 m². Edellä mainittu pinta-ala saattaa tämän ikäisessä kohteessa poiketa olennaisestikin nykyisten mittaustapojen ja standardien mukaan laskettavasta pinta-alasta. Todellinen asuinpinta-ala voi siis olla esitteessä mainittua pienempi tai suurempi. |
| Kerroksia | 1 |
| Vapautuminen | sopimuksen mukaan |
| Kohteen kunto | Ei luokiteltu |
| Energialuokka | Ei lain edellyttämää energiatodistusta |
| Rakennusvuosi | 1989 |
| Käyttöönottovuosi | 1989 |
| Velaton lähtöhinta | 98 000 € |
|---|---|
| Lähtöhinta ilman velkaosuutta | 98 000 € |
| Velkaosuus | - |
| Vuokrattu | Ei |
| Muut maksut | Noin 7000 kwh/vuosi, puita mennyt noin 30 mottia. |
|---|
| Lämmitysmuodot |
|
|---|---|
| Oma sauna | Kyllä |
| Sähköliittymä siirtyy | Kyllä |
| Antennijärjestelmä | Antenni |
| Luovutusrajoitukset | 1) Tieoikeus (000-2016-K13576) / Leveys: 8 m Rekisteröintipvm: 25.2.2016 Voimaantulopvm: 23.11.1989 Arkistoviite: 7:51, 17:58 Oikeutetut: 211-476-1-36 HAKAMÄKI, 211-476-1-42 Pihlajalinna, 211-477-1-74 HUUHILO I, 211-485-5-19 HAKAMÄKI 1, 211-485-5-20 VISAMÄKI 1 Rasitetut: 211-476-1-42 Pihlajalinna, 211-477-1-74 HUUHILO I, 211-477-1-75 PELTOKALLIO, 211-485-5-19 HAKAMÄKI 1, 211-485-5-21 HAKAMÄKI, 211-485-5-25 Kotimetsä |
| Palvelut | |
|---|---|
| Koulu | Sariolan ala- ja yläkoulu |
| Palvelut | Sahalahden keskustassa K-Market, apteekki, kampaaja, palvelupiste |
| Liikenneyhteydet | |
|---|---|
| Liikenneyhteydet | Linja-auto menee Kuhmalahdentieltä |
| Tie perille | Kyllä |
| Viemäri |
|
|---|---|
| Muut säilytystilat |
|
| Muu varustelu |
|
| Vesihuolto |
|
| Katto | |
|---|---|
| Kate | pelti |
| Rakennusmateriaalit | |
|---|---|
| Käytetyt rakennusmateriaalit |
|
| Muut rakennusmateriaalit | pelti |
| Keittiö | |
|---|---|
| Keittiön pöydät |
|
| Keittiön muu varustelu |
|
| Liesi |
|
| Jääkaappi ja pakastin |
|
| Keittiön lattia |
|
| Keittiön seinät |
|
| Kylpyhuone | |
|---|---|
| Kylpyhuoneen kuvaus | Remontoitu 2006. |
| Kylpyhuoneen varustelu |
|
| Kylpyhuoneen lattia |
|
| Kylpyhuoneen seinät |
|
| Sauna | |
|---|---|
| Kiuas |
|
| Saunan lattia |
|
| Saunan seinät |
|
| Makuuhuone | |
|---|---|
| 3 | |
| Makuuhuoneen lattia |
|
| Makuuhuoneen seinät |
|
| Olohuone | |
|---|---|
| Olohuoneen lattia |
|
| Olohuoneen seinät |
|
| Pesutilat | |
|---|---|
| Pesutilojen lattia |
|
| Pesutilojen seinät |
|
| WC-tilat | |
|---|---|
| WC-tilojen varustelu |
|
| Tontin nimi | Peltokallio |
|---|---|
| Koko | 2.162 ha |
| Omistus | Oma |
| Kaavoitustilanne |
|
| Kiinteistötunnus | 211-477-1-75 |
| Nimi | Toukola Johanna |
|---|---|
| Sähköposti | johanna.toukola@neliotliikkuu.fi |
| Puhelin | 0440789657 |
| Yrityksen nimi | Neliöt Liikkuu LKV Oy Ab |
| Toimiston nimi | Neliöt Liikkuu LKV Oy Ab, Kangasala |
| Yrityksen nimi | Neliöt Liikkuu LKV Oy Ab |
|---|---|
| Toimiston nimi | Neliöt Liikkuu LKV Oy Ab, Kangasala |
| Osoite | Myllystenpohjantie 1, Kangasala |
| Toimiston puhelin | 0102481600 |
| Toimiston sähköposti | info@neliotliikkuu.fi |











