Omakotitalo 3h+k+khh+kph+s+wcx2+eteinen+kuisti
Rajatie 11, Haviala, Kangasala
Hinta
249 000 €
Koko
107 m² / 127 m²
Vuosi
1953
NELIÖT LIIKKUU!
Tervetuloa tutustumaan tähän ainutlaatuiseen omakotitaloon, joka henkii kodikasta tunnelmaa Kangasalan Suinulan alueella. Tämä vuonna 1953 rakennettu puurunkoinen talo tarjoaa kodinomaisen ympäristön upealla tontilla.
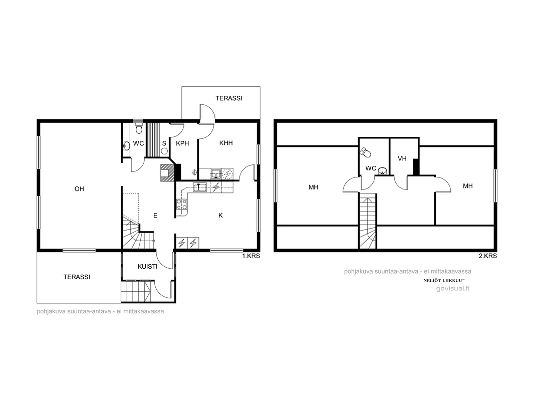
Tässä kodissa on kaksi makuuhuonetta, keittiö, kodinhoitohuone, kylpyhuone, sauna, kaksi erillistä wc:tä sekä kuisti.
Oma 1800 neliömetrin tontti antaa mahdollisuuden nauttia luonnonläheisyydestä ja omasta rauhasta. Täällä voit rentoutua pihatöiden parissa! Ulkorakennuksessa on tunnelmallinen pihasauna jossa kelpaa saunoa hyvissä löylyissä vapaa-ajalla. Säilytystilaa löytyy varaston ja vaatehuoneen ansiosta paljon. Sähkölämmityksen lisäksi talossa on ilmalämpöpumppu sekä tulipesä. Auton saat ajaa kätevästi suojaan katokseen, johon mahtuu kaksi autoa.
Talo on 90- luvun alussa purettu rungolleen, uudelleen rakennettu ja laajennettu. Älä jää paitsi tilaisuudesta kokea tämän kodin viehätys ja Kangasalan kaunis ympäristö – tule tutustumaan ja ihastumaan!
Lisätiedot ja esittelyt :
Silja Myllyniemi
silja.myllyniemi@neliotliikkuu.fi
0452377944
Silja Myllyniemi
Kiinteistönvälittäjä, LKV, LVV, KiAT
045 237 7944
silja.myllyniemi@neliotliikkuu.fi
| Kohdenumero | 20074115 |
|---|---|
| Sijainti | Rajatie 11, 36120 Kangasala |
| Huoneistoselitelmä | 3h+k+khh+kph+s+wcx2+eteinen+kuisti |
| Huoneita | Kolmio |
| Tyyppi | Omakotitalo (kiinteistö) |
| Asuintilojen pinta-ala | 107 m² |
| Pinta-alojen lisätiedot | pinta-ala laskettu mittanauhalla asuintilojen sisätiloista yli 160cm ylittävistä osista. |
| Kerroksia | 1.5 |
| Vapautuminen | sopimuksen mukaan |
| Kohteen kunto | Hyvä |
| Energialuokka | D2018. |
| Rakennusvuosi | 1953 |
| Käyttöönottovuosi | 1953 |
| Velaton hinta | 249 000 € |
|---|---|
| Myyntihinta | 249 000 € |
| Velkaosuus | - |
| Vuokrattu | Ei |
| Muut maksut | sähkön kulutus ollut 7270/kwh/vuosi 2024. kiinteistövero noin 123,22 €, tiemaksu 372,04€ (kaksi autoa) |
|---|
| Lämmitys | varaava takka |
|---|---|
| Lämmitysmuodot |
|
| Oma sauna | Kyllä |
| Sähköliittymä siirtyy | Kyllä |
| Antennijärjestelmä | Antenni |
| Kuntotarkistus tehty | Kyllä |
| Tehdyt remontit | 1990-1991 vanha talo purettiin rungolle, rakennettiin uudelleen ja laajennettiin, myös ulkosaunarakennus korjattu, 1991 salaojat uusittu ja asennettu, 2015 ikkunat vaihdettu, 2016 hormit pinnoitettu ja piipun hatut asennettu (ulkosauna ja talo), n2015 ulkomaalaus, n 2010 talon lisäeristys (SPU-eriste) kaikkiin muihin seiniin paitsi pesuhuoneen ulkoseinään ja kodinhoitohuoneen pohjoisseinään, myös olohuoneen lattia lisäeristetty, 2021 sisäremontti, myös kiuas uusittu, 2017 ulkosaunan pinnat uusittu ja lisäeristetty ja kiuas vaihdettu, 2010 vuoden jälkeen pintoja uusittu, sisäkatot maalattu, lattiat vaihdettu, 2018 kattoremontti, 2023 Hulevesijärjestelmä uusittu edellisen myyjän toimesta ja laitettu sulanapitokaapelit. |
| Liikenneyhteydet | |
|---|---|
| Tie perille | Kyllä |
| Viemäri |
|
|---|---|
| Muut säilytystilat |
|
| Muu varustelu |
|
| Tulisija |
|
| Vesihuolto |
|
| Lisätietoja vesijohdosta | Kiinteistöllä myös oma kaivo (2kpl) |
| Katto | |
|---|---|
| Kate | pelti |
| Katon kunto | remontoitu vuonna 2018 |
| Rakennusmateriaalit | |
|---|---|
| Rakennus- ja pintamateriaalien kuvaus | Perustukset : Betoni vanhassa osassa, harkko uudessa osassa. |
| Käytetyt rakennusmateriaalit |
|
| Keittiö | |
|---|---|
| Keittiön muu varustelu |
|
| Liesi |
|
| Jääkaappi ja pakastin |
|
| Keittiön lattia |
|
| Keittiön seinät |
|
| Kylpyhuone | |
|---|---|
| Kylpyhuoneen varustelu |
|
| Kylpyhuoneen lattia |
|
| Kylpyhuoneen seinät |
|
| Sauna | |
|---|---|
| Kiuas |
|
| Saunan lattia |
|
| Makuuhuone | |
|---|---|
| 2 | |
| Makuuhuoneen lattia |
|
| Makuuhuoneen seinät |
|
| Olohuone | |
|---|---|
| Olohuoneen lattia |
|
| Olohuoneen seinät |
|
| Pesutilat | |
|---|---|
| Pesutilojen lattia |
|
| Pesutilojen seinät |
|
| WC-tilat | |
|---|---|
| WC-tilojen kuvaus | seinät : ak wc : laatta, yk wc: paneeli. |
| WC-tilojen lattia |
|
| WC-tilojen seinät |
|
| Lisätietoja rakennusoikeudesta | Lisärakentaminen poikkeamispäätöksellä |
|---|---|
| Koko | 1 800 m² |
| Omistus | Oma |
| Kaavoitustilanne |
|
| Kiinteistötunnus | 211-459-3-163 |
| Rakennukset |
|
| Nimi | Myllyniemi Silja |
|---|---|
| Sähköposti | silja.myllyniemi@neliotliikkuu.fi |
| Puhelin | 0452377944 |
| Yrityksen nimi | Neliöt Liikkuu LKV Oy Ab |
| Toimiston nimi | Neliöt Liikkuu LKV Oy Ab, Kangasala |
| Yrityksen nimi | Neliöt Liikkuu LKV Oy Ab |
|---|---|
| Toimiston nimi | Neliöt Liikkuu LKV Oy Ab, Kangasala |
| Osoite | Myllystenpohjantie 1, Kangasala |
| Toimiston puhelin | 0102481600 |
| Toimiston sähköposti | info@neliotliikkuu.fi |