Omakotitalo 4h+k+ph+wc+kellari+piharakennukset
Isoniementie 314, Isoniemi, Kangasala
Hinta
119 000 €
Koko
73 m² / 84 m²
Vuosi
1936
Neliöt Liikkuu!
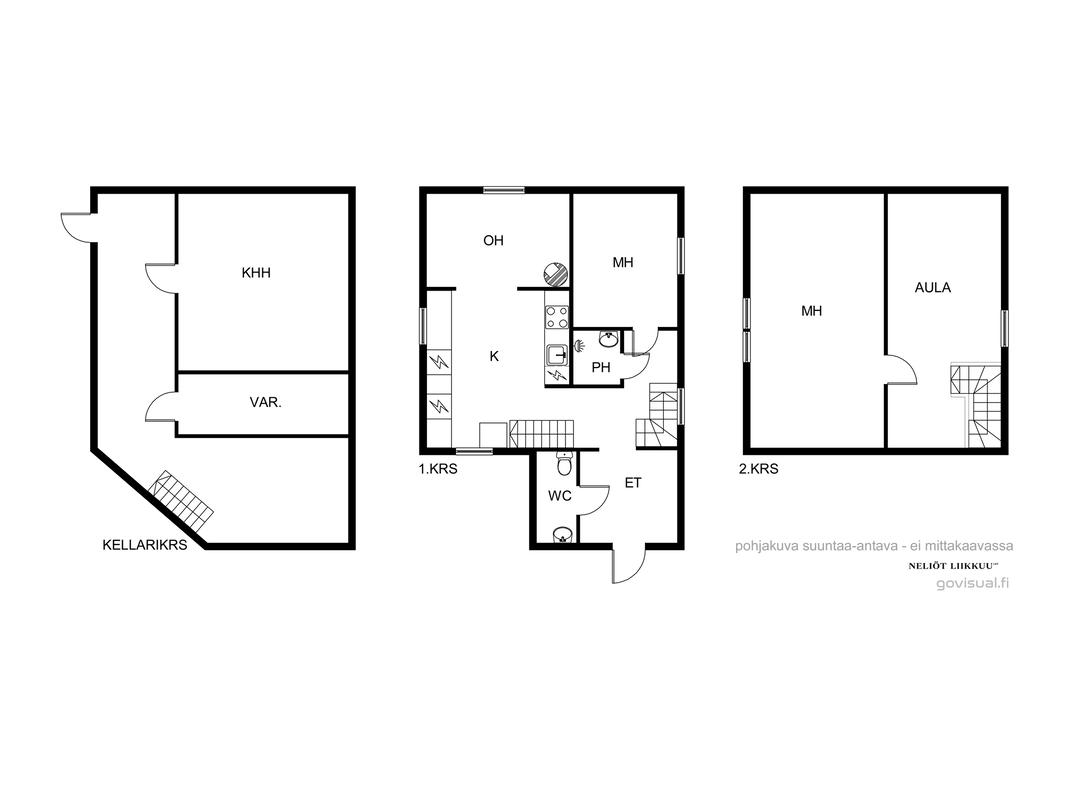
Nyt vapautumassa kauniista maalaismiljööstä yli 2 hehtaarin tontilla tämä kaunis hirsirunkoinen koti seuraavalle. Tontti mahdollistaa monenlaista, esimerkiksi nykyisellä omistajalla on ollut hevostoimintaa. Talon sisätilat on suurelta osin remontoitu 2017 eteenpäin ammattilaisten toimesta. Kauniit materiaalit ja näkyviin jätetty hirsi luo tähän kotiin lämpöisen tunnelman.
Toimiva keittiö houkuttelee varmasti vaativampaakin kotikokkia ja lämpöä taloon tuo uusittu tulipesä. Yksi makuuhuone on alakerrassa ja yläkerrasta löydät makuuhuoneen sekä aulatilan.
Sisään tullaan lämpöiselle kuistille ja asuinkerroksesta löytyy myös wc sekä erillinen suihku. Kellarista löytyy kuraeteinen ja kodinhoitohuone sekä varastotilaa. Isolla terassilla kelpaa istua iltaa ja katsella rauhallista maisemaa.
Sovi oma esittelysi joustavasti! TERVETULOA!
Johanna Toukola
0440 789 657
johanna.toukola@neliotliikkuu.fi
Johanna Toukola
Ylempi Kiinteistönvälittäjä YKV, LKV, KiAT
044 078 9657
johanna.toukola@neliotliikkuu.fi
| Kohdenumero | 21380489 |
|---|---|
| Sijainti | Isoniementie 314, 36420 Kangasala |
| Huoneistoselitelmä | 4h+k+ph+wc+kellari+piharakennukset |
| Huoneita | 4 h |
| Tyyppi | Omakotitalo (kiinteistö) |
| Asuintilojen pinta-ala | 73 m² |
| Pinta-alojen lisätiedot | Pinta-alaa ei ole tarkistusmitattu ja voi poiketa oleellisesti nyt ilmoitetusta. Kauppahinta ei ole pinta-alaperusteinen. |
| Kerroksia | 2 |
| Vapautuminen | sopimuksen mukaan |
| Kunto | Talo remontoitu kattavasti 2017 alkaen. |
| Kohteen kunto | Tyydyttävä |
| Energialuokka | Ei lain edellyttämää energiatodistusta |
| Rakennusvuosi | 1936 |
| Käyttöönottovuosi | 1936 |
| Velaton hinta | 119 000 € |
|---|---|
| Myyntihinta | 119 000 € |
| Velkaosuus | - |
| Vuokrattu | Ei |
| Muut maksut/lisätietoa maksuista | |
|---|---|
| Kiinteistövero | 680 € |
| Muut maksut | Sähkönkulutus noin 20 000 kwh/vuosi sisältäen tallit. |
|---|
| Lämmitysmuodot |
|
|---|---|
| Sähköliittymä siirtyy | Kyllä |
| Antennijärjestelmä | Antenni |
| Tehdyt remontit | Kuisti tehty jälkeenpäin. |
| Palvelut | |
|---|---|
| Koulu | Sariolan koulu 1-9 lk |
| Palvelut | K-Market Sahrami |
| Liikenneyhteydet | |
|---|---|
| Tie perille | Kyllä |
| Viemäri |
|
|---|---|
| Säilytystilojen kuvaus | Varasto kellarissa. |
| Muu varustelu |
|
| Tulisija |
|
| Vesihuolto |
|
| Lisätietoja vesijohdosta | Liitetty kunnan verkkoon 2016 |
| Katto | |
|---|---|
| Kate | Pelti |
| Rakennusmateriaalit | |
|---|---|
| Käytetyt rakennusmateriaalit |
|
| Keittiö | |
|---|---|
| Keittiön varustelu | Kaunis keittiö uusittu 2017 samoin kodinkoneet. Mahtuu ruokailuryhmä. |
| Keittiön pöydät |
|
| Keittiön muu varustelu |
|
| Liesi |
|
| Jääkaappi ja pakastin |
|
| Keittiön lattia |
|
| Keittiön seinät |
|
| Kylpyhuone | |
|---|---|
| Kylpyhuoneen kuvaus | Kylpyhuone uusittu 2017. |
| Kylpyhuoneen varustelu |
|
| Kylpyhuoneen lattia |
|
| Kylpyhuoneen seinät |
|
| Makuuhuone | |
|---|---|
| 2 | |
| Makuuhuoneen lattia |
|
| Makuuhuoneen seinät |
|
| Olohuone | |
|---|---|
| Olohuoneen lattia |
|
| Olohuoneen seinät |
|
| Pesutilat | |
|---|---|
| Pesutilojen lattia |
|
| Pesutilojen seinät |
|
| WC-tilat | |
|---|---|
| WC-tilojen kuvaus | WC uusittu 2017. |
| WC-tilojen varustelu |
|
| WC-tilojen lattia |
|
| WC-tilojen seinät |
|
| Tontin nimi | Mäkelä |
|---|---|
| Koko | 2.128 ha |
| Omistus | Oma |
| Kaavoitustilanne |
|
| Kiinteistötunnus | 211-482-1-2 |
| Ranta |
|
| Esittelyaika | 30.11. 13:45 - 14:15 |
|---|---|
| Esittelijä | Toukola Johanna |
| p. | 0440789657 |
| Sähköposti | johanna.toukola@neliotliikkuu.fi |
| yleisesittely |
| Nimi | Toukola Johanna |
|---|---|
| Sähköposti | johanna.toukola@neliotliikkuu.fi |
| Puhelin | 0440789657 |
| Yrityksen nimi | Neliöt Liikkuu LKV Oy Ab |
| Toimiston nimi | Neliöt Liikkuu LKV Oy Ab, Kangasala |
| Yrityksen nimi | Neliöt Liikkuu LKV Oy Ab |
|---|---|
| Toimiston nimi | Neliöt Liikkuu LKV Oy Ab, Kangasala |
| Osoite | Myllystenpohjantie 1, Kangasala |
| Toimiston puhelin | 0102481600 |
| Toimiston sähköposti | info@neliotliikkuu.fi |

































