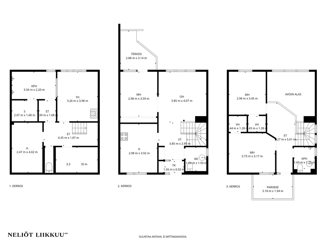
Rivitalo 4h, k, tkh, khh, 2x kph, wc, s, varasto, autokatos (yj:n mukaan 4h+k+s+th+apk)
Valkamantie 2, Työtjärvi, Hollola
Hinta
215 000 €
Koko
150 m²
Vuosi
1993
Paraatipaikalta aivan rannan tuntumasta!
Upea ja laadukkaasti rakennettu rivitalokoti! Jo sisään astuessa katse kiinnittyy olohuoneen hulppeaan huonekorkeuteen ja valoisaan, avaraan tunnelmaan.
Päämakuuhuoneesta on suora käynti omalle terassille, joka on täydellinen paikka nauttia aamukahvit auringonpaisteessa. Keittiö hurmaa niin tilavuudellaan kuin käytännöllisyydellään. Siellä on runsaasti kaapi-ja laskutilaa sekä hyvin tilaa myös ruokapöydälle.
Yläkerrasta löytyvät kaksi tilavaa makuuhuonetta, oma kylpyhuone sekä parveke, jolta avautuvat vehreät näkymät. Kellarikerros tarjoaa tunnelmallisen takkahuoneen, erillisen wc:n, kylpyhuoneosaston kahdella suihkulla ja ammevarauksella, oman saunan sekä erittäin tilavan kodinhoitohuoneen. Säilytystilat eivät lopu kesken – alakerran iso varastohuone, vaatehuoneet ja tilava ulkovarasto pitävät arjen siistinä ja järjestyksessä.
Huoneistolle kuuluu oma autokatospaikka sekä pistokkeellinen pihapaikka.
Taloyhtiö sijaitsee omalla tontilla ja lämpiää kaukolämmöllä. Yhtiössä on juuri valmistunut kattoremontti ja sitä on hoidettu huolellisesti. Yleinen uimaranta sijaitsee aivan vieressä, joten kesäpäivät kuluvat kuin lomalla. Sijainti Hollolan Työtjärvellä tarjoaa luonnonläheisen ja rauhallisen ympäristön, jota lapsiperheet erityisesti arvostavat.
MYYNTI & YHTEYDENOTOT:
Tommy Jannasch
Kiinteistönvälittäjä LKV, LVV, KED
p. 050 305 9699 / tommy@neliotliikkuu.fi
Neliöt Liikkuu Lkv Oy Ab
Tommy Jannasch
Kiinteistönvälittäjä LKV, LVV, Kiinteistöedustaja KED
050 305 9699
tommy@neliotliikkuu.fi
| Kohdenumero | 21574054 |
|---|---|
| Sijainti | Valkamantie 2, 15880 Hollola |
| Omistusmuoto | Oma |
| Huoneistoselitelmä | 4h, k, tkh, khh, 2x kph, wc, s, varasto, autokatos (yj:n mukaan 4h+k+s+th+apk) |
| Huoneita | 5 h |
| Hallintamuoto | Asunto-osakeyhtiö |
| Tyyppi | Rivitalo (osake) |
| Asuintilojen pinta-ala | 150 m² |
| Kerros | 3/3 |
| Vapautuminen | sopimuksen mukaan |
| Kohteen kunto | Tyydyttävä |
| Energialuokka | Ei lain edellyttämää energiatodistusta |
| Rakennusvuosi | 1993 |
| Käyttöönottovuosi | 1993 |
| Velaton hinta | 215 000 € |
|---|---|
| Myyntihinta | 196 576,72 € |
| Velkaosuus | 18 423,28 € |
| Vuokrattu | Ei |
| Vastikkeet | |
|---|---|
| Huoneiston yhtiövastike yht | 855 € / kk |
| Rahoitusvastike | 285 € / kk |
| Hoitovastike | 570 € / kk |
| Vesimaksu | 20 € / kk oma mittari |
|---|---|
| Muut maksut | Yhtiössä on katon muutostöiden kustannuksia ei ole vielä jyvitetty huoneistokohtaiseksi. Yhtiön varattu laina on nostettu ja isännöitsijätodistuksella näkyvä määrä on huoneiston laskennallinen määrä nostetusta määrästä. Yhtiö tekee ylimääräisen lyhennyksen kun hanke on kokonaisuudessaan valmiina. |
| Lämmitysmuodot |
|
|---|---|
| Oma sauna | Kyllä |
| Parveke | Kyllä |
| Antennijärjestelmä | Kaapeli-tv |
| Muut säilytystilat |
|
|---|---|
| Tulisija |
|
| Katto | |
|---|---|
| Kate | Tiilikate |
| Rakennusmateriaalit | |
|---|---|
| Käytetyt rakennusmateriaalit |
|
| Keittiö | |
|---|---|
| Keittiön pöydät |
|
| Keittiön muu varustelu |
|
| Liesi |
|
| Jääkaappi ja pakastin |
|
| Keittiön lattia |
|
| Keittiön seinät |
|
| Kylpyhuone | |
|---|---|
| Kylpyhuoneen varustelu |
|
| Kylpyhuoneen lattia |
|
| Kylpyhuoneen seinät |
|
| Sauna | |
|---|---|
| Kiuas |
|
| Saunan lattia |
|
| Saunan seinät |
|
| Makuuhuone | |
|---|---|
| 3 | |
| Makuuhuoneen lattia |
|
| Makuuhuoneen seinät |
|
| Parveke | |
|---|---|
| Parveke |
|
| Olohuone | |
|---|---|
| Olohuoneen lattia |
|
| Olohuoneen seinät |
|
| Pesutilat | |
|---|---|
| Pesutilojen lattia |
|
| Pesutilojen seinät |
|
| WC-tilat | |
|---|---|
| WC-tilojen varustelu |
|
| WC-tilojen lattia |
|
| WC-tilojen seinät |
|
| Koko | 2 830 m² |
|---|---|
| Omistus | Oma |
| Kaavoitustilanne |
|
| Kaavoitustiedot | Hollolan kunta. |
| Nimi | Asunto Oy Hollolan Tähtikumpu |
|---|---|
| Isännöitsijän tiedot | Simunan Tiliapu Niemenkatu 73 15140 Lahti Isännöitsijä Simuna Henri Puhelin 0505237763 Sähköposti info@simunantiliapu.fi |
| Huolto | Lumityö on ulkoistettu. |
| Tehdyt remontit | 2025: katon huolto ja muutostyöt A-taloon on tehty ulkona perustuksissa vesieristysremontti 2023 tontin raja-aita 2022 B4 huoneiston päädyn sadeveden ohjaus ja patolevyn uusiminen sekä pinnan muotoilu, kaukolämpövaihtimen vaihto 2021 kattoikkunoiden uusiminen B4 ja B5 ja kaikkien kattoikkunoiden pellitys 2020, A1-B5 parvekkeiden kunnostus, B taloa ympäröivän aidan kunnostus 2018 Ilmanvaihtokanavien nuohous ja ilmamäärien säätö 2015, julkisivun rappaus ja maalaus, parvekkeiden ja terassien kunnostus ja maalaus 2014, kattojen pesu ja kunnostus 2013, puuaitojen kunnostus ja maalaus 2012, autotallien ja yhtiön ulkovarastojen ovet uusittu 2011, lämmönjakokeskuksen putket eristetty 2005, A-taloon vaihdettu ulko-ovet |
| Tulevat remontit | 2025, ylläpitohuoltoa, energiatodistuksen päivitys, palovaroittimet, vesikalusteiden tarkistus ja hajulukkojen puhdistus, ilmanvaihdon nuohous 2026, ylläpitohuoltoa, 2027, ylläpitohuoltoa, kylpyhuoneiden saneeraus 2028, ylläpitohuoltoa, |
| Taloyhtiön autopaikat |
|
| Huoneistojen lukumäärä | 6 |
| Taloyhtiössä |
|
| Esittelyaika | 25.01. 14:30 - 14:50 |
|---|---|
| Esittelijä | Jannasch Tommy |
| p. | 0503059699 |
| Sähköposti | tommy@neliotliikkuu.fi |
| yleisesittely |
| Nimi | Jannasch Tommy |
|---|---|
| Sähköposti | tommy@neliotliikkuu.fi |
| Puhelin | 050 305 9699 |
| Yrityksen nimi | Neliöt Liikkuu LKV Oy Ab |
| Toimiston nimi | Neliöt Liikkuu LKV Oy Ab, Lahti |
| Yrityksen nimi | Neliöt Liikkuu LKV Oy Ab |
|---|---|
| Toimiston nimi | Neliöt Liikkuu LKV Oy Ab, Lahti |
| Osoite | Ahjokatu 4, Lahti |
| Toimiston puhelin | 0102481600 |
| Toimiston sähköposti | info@neliotliikkuu.fi |