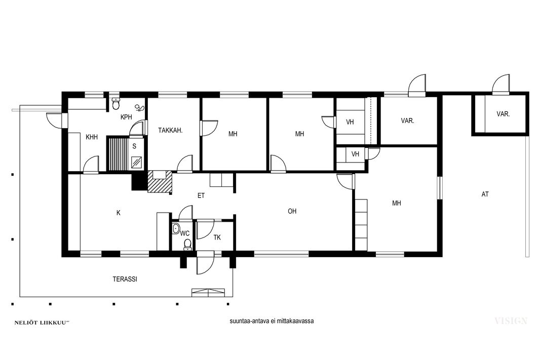
Omakotitalo 5h,k,khh,kph,wc,sauna+autotalli
Kukkumäenkuja 1, Toijala, Akaa
Hinta
199 000 €
Koko
120 m² / 144 m²
Vuosi
1990
Valoisa ja hyvin pidetty omakotitalo suojaisalla tontilla Akaan Toijalassa
Tervetuloa tutustumaan tähän viihtyisään ja hyväkuntoiseen omakotitaloon rauhallisella Palkinpään alueella Toijalassa!
Talo on valmistunut vuonna 1990 ja sitä on laajennettu vuonna 2007. Kodissa on tehty paljon ajantasaisia remontteja, muun muassa kylpyhuone on uusittu 2023, keittiö on päivitetty 2018, ja ilmalämpöpumppu on asennettu 2024.
Yksitasoisuus helpottaa lapsiperheen arkea ja asumista, pohjakuva on toimiva ja muunneltavissa, kolme makuuhuonetta, valoisa olohuone, takkahuone, keittiö, kodinhoitohuone, saunaosasto sekä erillinen wc. Kodin sydän on viihtyisä takkahuone, josta on suora yhteys saunaan ja kylpytiloihin. Kodinhoitohuoneesta on käynti suoraan ulos, mikä tekee arjesta sujuvaa.
Kaksi vaatehuonetta ja lämmin ulkovarasto tuovat runsaasti säilytystilaa. Lisäksi käytössäsi on autotalli ja erillinen varasto.
Tasainen 1 024 m²:n oma tontti on suojainen ja vehreä puutarhatontti, jossa on tilaa leikeille, oleskelulle ja puutarhanhoidolle.
Kukkumäenkuja sijaitsee rauhallisella asuinalueella, jossa palvelut, koulut ja päiväkodit ovat helposti saavutettavissa. Toijalan keskustan ja juna-aseman palvelut ovat vain muutaman minuutin päässä, ja Tampereellekin ajat alle puolessa tunnissa.
Tämä koti tarjoaa erinomaisen vaihtoehdon perheelle, joka arvostaa tilaa, rauhaa ja valmiiksi tehtyjä remontteja.
Myynti ja lisätiedot
Piia Rosvall I Neliöt Liikkuu Lkv
044 768 8109
piia.rosvall@neliotliikkuu.fi
| Kohdenumero | 20874903 |
|---|---|
| Sijainti | Kukkumäenkuja 1, 37800 Akaa |
| Huoneistoselitelmä | 5h,k,khh,kph,wc,sauna+autotalli |
| Huoneita | 5 h |
| Tyyppi | Omakotitalo (kiinteistö) |
| Asuintilojen pinta-ala | 120 m² |
| Pinta-alojen lisätiedot | Pinta-alat perustuvat myyjältä saatuihin tietoihin. Pinta-aloja ei ole tarkistusmitattu, mitattaessa pinta-alat saattavat olla ilmoitettua suurempia tai pienempiä. Hinta ei ole pinta-alaperusteinen. |
| Kerroksia | 1 |
| Vapautuminen | sopimuksen mukaan |
| Kohteen kunto | Hyvä |
| Energialuokka | Ei lain edellyttämää energiatodistusta |
| Rakennusvuosi | 1990 |
| Käyttöönottovuosi | 1990 |
| Velaton hinta | 199 000 € |
|---|---|
| Myyntihinta | 199 000 € |
| Velkaosuus | - |
| Vuokrattu | Ei |
| Muut maksut/lisätietoa maksuista | |
|---|---|
| Kiinteistövero | 376 € / vuosi |
| Muut maksut | Sähkönkulutus nykyisellään 13 000kwh/vuosi. Jätehuolto paikallisen urakoitsijan taksoituksen mukaan. Esitetyt asumiskustannukset perustuvat nykykäyttöön ja voivat siten olla pienempiä tai suurempia,riippuen asukasmäärästä, asumistottumuksista sekä palveluntarjoajasta. |
|---|
| Lämmitysmuodot |
|
|---|---|
| Oma sauna | Kyllä |
| Sähköliittymä siirtyy | Kyllä |
| Kuntotarkistus tehty | Kyllä |
| Tehdyt remontit | 2017-2019 Ulkopuolisten puuosien huoltomaalaus 2017-2019 Ikkunoiden huoltomaalaus 2018 Keittiö 2021 Vesikaton huoltopinnoitus 2023 Lumiesteet 2023 Kylpyhuone 2023 Kylpyhuoneen käyttövesiputket 2023 Lattialämmitys kylpyhuoneeseen 2023 Lämminvesivaraaja 2024 Ilmalämpöpumppu 2025 Keittiön astianpesukone |
| Liikenneyhteydet | |
|---|---|
| Tie perille | Kyllä |
| Viemäri |
|
|---|---|
| Muut säilytystilat |
|
| Säilytystilojen kuvaus | Kaksi tilavaa vaatehuonetta Lämmin ulkovarasto |
| Muu varustelu |
|
| Tulisija |
|
| Vesihuolto |
|
| Katto | |
|---|---|
| Kate | Pelti |
| Rakennusmateriaalit | |
|---|---|
| Käytetyt rakennusmateriaalit |
|
| Keittiö | |
|---|---|
| Keittiön varustelu | Valoisa ja kaunis keittiö, runsaasti kaappitilaa |
| Keittiön pöydät |
|
| Keittiön muu varustelu |
|
| Liesi |
|
| Jääkaappi ja pakastin |
|
| Keittiön lattia |
|
| Keittiön seinät |
|
| Kylpyhuone | |
|---|---|
| Kylpyhuoneen kuvaus | Kylpyhuone remontoitu 2023 |
| Kylpyhuoneen varustelu |
|
| Kylpyhuoneen lattia |
|
| Kylpyhuoneen seinät |
|
| Sauna | |
|---|---|
| Kiuas |
|
| Saunan lattia |
|
| Saunan seinät |
|
| Makuuhuone | |
|---|---|
| 3 | |
| Makuuhuoneen lattia |
|
| Makuuhuoneen seinät |
|
| Olohuone | |
|---|---|
| Olohuoneen lattia |
|
| Olohuoneen seinät |
|
| Pesutilat | |
|---|---|
| Pesutilojen lattia |
|
| Pesutilojen seinät |
|
| WC-tilat | |
|---|---|
| WC-tilojen varustelu |
|
| WC-tilojen lattia |
|
| WC-tilojen seinät |
|
| Rakennusoikeus e-luku | 0.2 |
|---|---|
| Koko | 1 024 m² |
| Omistus | Oma |
| Kaavoitustilanne |
|
| Kiinteistötunnus | 20-3-143-4 |
| Esittelyaika | 11.01. 13:00 - 13:30 |
|---|---|
| Esittelijä | Rosvall Piia |
| p. | 044 768 8109 |
| Sähköposti | piia.rosvall@neliotliikkuu.fi |
| ensiesittely |
| Nimi | Rosvall Piia |
|---|---|
| Sähköposti | piia.rosvall@neliotliikkuu.fi |
| Puhelin | 044 768 8109 |
| Yrityksen nimi | Neliöt Liikkuu LKV Oy Ab |
| Toimiston nimi | Neliöt Liikkuu LKV Oy Ab, Tampere |
| Yrityksen nimi | Neliöt Liikkuu LKV Oy Ab |
|---|---|
| Toimiston nimi | Neliöt Liikkuu LKV Oy Ab, Tampere |
| Osoite | Tampellan esplanadi 6 LH 3-4, Tampere |
| Toimiston puhelin | 0102481600 |
| Toimiston sähköposti | info@neliotliikkuu.fi |

































