Omakotitalo 3-4h, k, ruokasali, khh, 2xkph, 2xwc, vh, 3xvar, autokatos
Takalankuja 15, Tapanila, Helsinki
Hinta
688 000 €
Koko
135 m² / 161,50 m²
Vuosi
1920
Tunnelmallinen noin vuonna 1920 rakennettu koti Tapanilassa!
Tervetuloa tutustumaan tähän ainutlaatuiseen ja myöhemmin perusteellisesti kunnostettuun omakotitaloon, joka sijaitsee omalla 1188 m²:n tontilla rauhallisella ja halutulla Tapanilan alueella. Vastaavanlaisia koteja tulee myyntiin äärimmäisen harvoin, tämä on todellinen löytö sinulle, joka arvostat historiaa, tunnelmaa ja elämisen mahdollisuuksia, joita vain tällainen kokonaisuus voi tarjota.
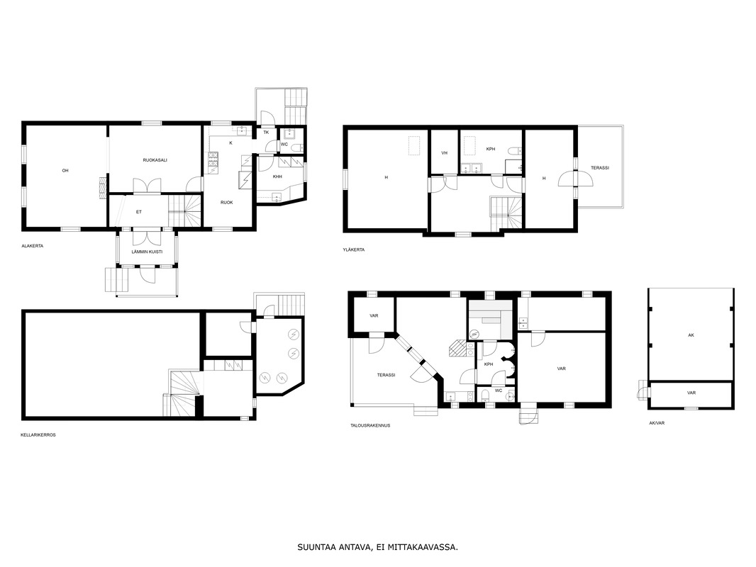
Kolmeen kerrokseen jakautuva päärakennus n. 135 m² huokuu kodikkuutta ja vanhan ajan charmia, joka yhdistyy hienovaraisesti moderniin asumisen mukavuuteen. Talon henkeä kunnioittaen tehty peruskorjaus 2000-luvulla on tuonut kodin tähän päivään säilyttäen sen persoonallisuuden. Valoisa olohuone ja ruokasali luovat viihtyisän tilan arkeen ja juhlaan. Keittiössä on yhdistetty perinteinen tyyli ja nykyaikainen toiminnallisuus ja tilaa riittää niin ruoanlaittoon kuin ruokailuun. Samassa kerroksessa sijaitsee myös käytännöllinen kodinhoitohuone, joka helpottaa arjen askareita. Yläkerran kaksi suurta makuuhuonetta tarjoavat joustavuutta perheen tarpeiden mukaan. Lisäksi yläkerrassa sijaitsee vaatehuone sekä kylpyhuone/wc, johon on mahdollisuus asentaa myös tassu- tai poreamme. Kellarikerroksen tunnelmallinen vuonna 2012 rakennettu viinikellari kruunaa kokonaisuuden.
Kiinteistö tarjoaa poikkeuksellisia mahdollisuuksia myös asumisen ulkopuolella. Vuonna 2004 valmistunut n. 65 m² talousrakennus on monikäyttöinen tila, jossa on saunallinen kylpyhuone, takkahuone, varasto- ja työtiloja. Lämmin verstas/varastotila sopii erinomaisesti pienimuotoiseen yritystoimintaan, harrastamiseen tai vaikka luovaksi työtilaksi. Tilassa on myös vesi ja viemäri sekä mahdollisuus rakentaa wc.
Tontti itsessään on kuin oma maailmansa. Suojaisa ja vehreä pihapiiri kutsuu nauttimaan rauhasta ja ulkoelämästä. Huolella hoidetussa puutarhassa on kauniita istutuksia, kasvihuone, grillikatos ja poreallas, joissa viihdyt ympäri vuoden. Kaivon vettä voidaan käyttää sekä puutarhan kasteluun että pihan koristeellisiin tekolampiin. Lisäksi pihalta löytyy v. 2005 rakennettu kahden auton autokatos ja sen yhteydessä kylmävarasto.
Huolella pidetty ja monipuolinen koti, joka mukautuu eri elämäntilanteisiin ja tarpeisiin. Tervetuloa paikan päälle tutustumaan tähän ainutlaatuiseen kokonaisuuteen.
Esittelyt järjestetään vain yksityisesti, jotta pääset tutustumaan kohteeseen rauhassa. Ole yhteydessä ja varaa oma esittelyaika!
Myyntiä hoitaa:
Emilia Juvonen
Kiinteistönvälittäjä, LKV, LVV
emilia.juvonen@neliotliikkuu.fi
0505750438
Emilia Juvonen
KIINTEISTÖNVÄLITTÄJÄ LKV, LVV
050 575 0438
emilia.juvonen@neliotliikkuu.fi
| Kohdenumero | 20264398 |
|---|---|
| Sijainti | Takalankuja 15, 00730 Helsinki |
| Omistusmuoto | Oma |
| Huoneistoselitelmä | 3-4h, k, ruokasali, khh, 2xkph, 2xwc, vh, 3xvar, autokatos |
| Huoneita | 4 h |
| Tyyppi | Omakotitalo (kiinteistö) |
| Asuintilojen pinta-ala | 135 m² |
| Pinta-alojen lisätiedot | Päärakennus Huoneistoala pyöristettynä: 135,0 m2 Talousrakennus Huoneistoala, asuinalat; 26,5 m2 Autokatos (varastotila): 11,08 m2 Lämmin varasto/verstas: 27,5 m2 Lämmin kellarivarasto: 15,0 m2 Kylmä autokatosvarasto: 11,0 m2 |
| Kerroksia | 3 |
| Vapautuminen | sopimuksen mukaan / 2-4 kk kaupanteosta |
| Kohteen kunto | Hyvä |
| Energialuokka | D2018. Lisätietoja energialuokasta: Talousrakennuksen energialuokka on E2018 |
| Asbestikartoitus | Ei |
| Rakennusvuosi | 1920 |
| Velaton hinta | 688 000 € |
|---|---|
| Myyntihinta | 688 000 € |
| Velkaosuus | - |
| Vuokrattu | Ei |
| Muut maksut/lisätietoa maksuista | |
|---|---|
| Kiinteistövero | 1062,66 €/vuosi 2025 |
| Tiemaksu | 105,13 €/vuosi |
| Puhtaanapito | 20,18 € / kk |
|---|---|
| Muut maksut | - Talossa on varaava yösähkölämmitys ja kulutus sisältää myös käyttösähkön lopussa. - Sähkönkulutus (lämmitys/käyttö): n. 29 000 kWh/vuosi (nykyisillä omistajilla) - Hälytinjärjestelmä 65,17 euroa / kk sopimuksen siirrettävyys selvitettävä. - Elisa 5G langaton taloverkko sopimuksen mukaan. Kuituyhteys mahdollinen. |
| Lämmitys | Sähkö. varaava yösähkö, vesikiertoiset lämmityspatterit, märkätiloissa lattiassa lattialämmitys (sähkö/vesi) |
|---|---|
| Lämmitysmuodot |
|
| Oma sauna | Kyllä |
| Sähköliittymä siirtyy | Kyllä |
| Kuntotarkistus tehty | Kyllä |
| Tehdyt remontit | Luettavissa kuntotarkastusraportista. |
| Palvelut | |
|---|---|
| Päiväkoti | Alueella useita. Lähin: Päiväkoti Satulinna n. 800m |
| Koulu | Alueella useita. Lähin: Tapanilan ala-asteen koulu n. 750m |
| Palvelut | Alepa Tapaninkylä n. 500m, S-Market Suutarila n. 1,1km, K-Market Tapuli n. 1,3km, Prisma Malmi n. 2,4km, K-Citymarket Malmi n. 2,7km |
| Liikenneyhteydet | |
|---|---|
| Liikenneyhteydet | Bussit: n. 100m (Linjat: 73, 73N) Juna: n. 1,1km (Tapanila) |
| Tie perille | Kyllä |
| Viemäri |
|
|---|---|
| Säilytystilojen kuvaus | kaapistot, vaatehuone, lämpimät ja kylmä varastotilat |
| Vesihuolto |
|
| Katto | |
|---|---|
| Kate | Tiilikuvioitu pelti |
| Katon kunto | Lisätietoa kuntotarkastusraportissa |
| Rakennusmateriaalit | |
|---|---|
| Rakennus- ja pintamateriaalien kuvaus | Alapohjarakenteet: Rakennuksen alla on ryömintätila, betonipilarit + täytevalusokkeli Ulkoseinärakenteet: Hirsi/lauta - pysty/vaakapaneeli Julkisivu: Maalattu puu Väliseinät: Hirsi tai lauta + runkotolpitus, puurunko/levy / yläkerta. Välipohja: Puupalkisto Yläpohja: Ristikoiden varaan rakennettu |
| Keittiö | |
|---|---|
| Keittiön varustelu | Varustus: Hiiliparila/Rasvakeitin, liesi 90cm (jossa 4 kaasupoltinta ja 2 keraamista keittoaluetta, sähköuuni, integroitu astianpesukone, mikroaaltouuni, side-by-side jää/pakastinkaappi 90cm (jossa vesiverkostoon liitetty jääpalakone) Lattia: Vinyyliparketti Seinä: Tapetti/laatat |
| Kylpyhuone | |
|---|---|
| Kylpyhuoneen kuvaus | Päärakennus varustus: suihku, suinkukaappi (lasi), , 2 lavuaaria, allaskaappi, wc-istuin, erillinen bidehana, kattoikkuna, kiinteät valaisimet, lattialämmitys (viemäri ja hanavaraus tassuammeelle). Talousrakennus varustus: 2x suihku/sadesuihku, 2x suihkunurkkaus, lämmitetty penkki, lattialämmitys Lattia: laatta Seinä: laatta |
| Sauna | |
|---|---|
| Saunan kuvaus | Lattia: laatta Seinä: paneeli, kaakeli Kiuas: Takkahuoneen puolelta lämmitettävä Harvian puukiuas |
| Makuuhuone | |
|---|---|
| Makuuhuoneen kuvaus | Lattiat petsikäsitelty |
| 2 | |
| Makuuhuoneen lattia |
|
| Makuuhuoneen seinät |
|
| Olohuone | |
|---|---|
| Olohuoneen lattia |
|
| Olohuoneen seinät |
|
| WC-tilat | |
|---|---|
| WC-tilojen kuvaus | Päärakennus varustus: Wc-istuin, peili, allaskaappi, kiinteät valaisimet, lattialämmitys, lattiakaivo Talousrakennus varustus: wc-istuin, allaskaappi, peili, kiinteät valaisimet, lattialämmitys |
| WC-tilojen lattia |
|
| WC-tilojen seinät |
|
| Rakennusoikeus e-luku | 0.2 |
|---|---|
| Koko | 1 188 m² |
| Omistus | Oma |
| Kaavoitustilanne |
|
| Kiinteistötunnus | 91-39-342-2 |
| Rakennukset |
|
| Nimi | Juvonen Emilia |
|---|---|
| Sähköposti | emilia.juvonen@neliotliikkuu.fi |
| Puhelin | 050 575 0438 |
| Yrityksen nimi | Neliöt Liikkuu LKV Oy Ab |
| Toimiston nimi | Neliöt Liikkuu LKV Oy Ab |
| Yrityksen nimi | Neliöt Liikkuu LKV Oy Ab |
|---|---|
| Toimiston nimi | Neliöt Liikkuu LKV Oy Ab |
| Osoite | Museokatu 7, HELSINKI |
| Toimiston puhelin | 0406547075 |
| Toimiston sähköposti | info@neliotliikkuu.fi |



