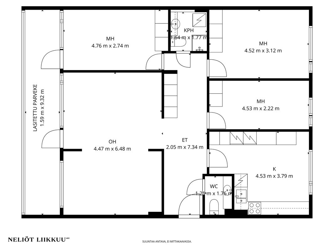
Kerrostalo 5h, k, kph, wc, lasitettu parveke (yj:n mukaan 5h+k)
Pussikatu 1, Mukkula, Lahti
Hinta (Tarjouskauppa)
45 000 €
Koko
99,30 m²
Vuosi
1967
Tervetuloa tutustumaan valoisaan ja tilavaan kerrostaloasuntoon Mukkulassa! Tämä koti tarjoaa runsaasti tilaa ja mahdollisuuksia isommallekin perheelle tai sinulle, joka arvostat väljyyttä ja toimivaa pohjaratkaisua.
Asunnossa on kolme makuuhuonetta sekä avara olohuone, joka on avattu yhdeksi suureksi oleskelutilaksi. Tarvittaessa huonejärjestystä on mahdollista muokata ja palauttaa neljänneksi makuuhuoneeksi.
Erillinen keittiö tarjoaa runsaasti työ- ja säilytystilaa ja lasitettu parveke tuo mukavasti lisätilaa niin oleskeluun kuin kasvien kasvatukseen. Kylpyhuoneen yhteydessä on wc ja lisäksi asunnossa on erillinen wc, mikä lisää asumismukavuutta etenkin perhearkea ajatellen.
Taloyhtiö on hyvin hoidettu ja siinä on tehty laajasti peruskorjauksia ja remontteja, mikä tuo huoletonta asumista tuleville vuosille. Asukkaille on myös tarjolla autotalleja vuokrattavaksi.
MYYNTI & YHTEYDENOTOT:
Tommy Jannasch
Kiinteistönvälittäjä LKV, LVV, KED
p. 050 305 9699 / tommy@neliotliikkuu.fi
Neliöt Liikkuu Lkv Oy Ab
Tommy Jannasch
Kiinteistönvälittäjä LKV, LVV, Kiinteistöedustaja KED
050 305 9699
tommy@neliotliikkuu.fi
| Kohdenumero | 21350082 |
|---|---|
| Sijainti | Pussikatu 1, 15240 Lahti |
| Omistusmuoto | Oma |
| Huoneistoselitelmä | 5h, k, kph, wc, lasitettu parveke (yj:n mukaan 5h+k) |
| Huoneita | 5 h |
| Hallintamuoto | Asunto-osakeyhtiö |
| Tyyppi | Kerrostalo (osake) |
| Asuintilojen pinta-ala | 99,30 m² |
| Kerros | 3/3 |
| Vapautuminen | sopimuksen mukaan |
| Kohteen kunto | Tyydyttävä |
| Energialuokka | D2018. Lisätietoja energialuokasta: Energiatodistus voimassa 18.04.2033. |
| Rakennusvuosi | 1967 |
| Käyttöönottovuosi | 1967 |
| Velaton lähtöhinta | 45 000 € |
|---|---|
| Lähtöhinta ilman velkaosuutta | 42 492,47 € |
| Velkaosuus | 2 507,53 € |
| Vuokrattu | Ei |
| Vastikkeet | |
|---|---|
| Huoneiston yhtiövastike yht | 659,88 € / kk |
| Rahoitusvastike | 145,08 € / kk |
| Hoitovastike | 514,80 € / kk |
| Muut maksut/lisätietoa maksuista | |
|---|---|
| Autopaikkamaksu | 5 € / kk |
| Saunamaksu | 7 € / kk |
|---|---|
| Vesimaksu | 24 € / kk henkilöluvun mukaan |
| Muut maksut | Autopaikka 5e/kk. Autotallivuokrat 13-27e/kk. |
| Lämmitysmuodot |
|
|---|---|
| Parveke | Kyllä |
| Antennijärjestelmä | Kaapeli-tv |
| Katto | |
|---|---|
| Kate | Huopakate |
| Rakennusmateriaalit | |
|---|---|
| Käytetyt rakennusmateriaalit |
|
| Keittiö | |
|---|---|
| Keittiön pöydät |
|
| Keittiön muu varustelu |
|
| Liesi |
|
| Jääkaappi ja pakastin |
|
| Keittiön lattia |
|
| Keittiön seinät |
|
| Kylpyhuone | |
|---|---|
| Kylpyhuoneen varustelu |
|
| Kylpyhuoneen lattia |
|
| Kylpyhuoneen seinät |
|
| Makuuhuone | |
|---|---|
| Makuuhuoneen lattia |
|
| Makuuhuoneen seinät |
|
| Parveke | |
|---|---|
| Parveke |
|
| Olohuone | |
|---|---|
| Olohuoneen lattia |
|
| Olohuoneen seinät |
|
| WC-tilat | |
|---|---|
| WC-tilojen varustelu |
|
| WC-tilojen lattia |
|
| WC-tilojen seinät |
|
| Koko | 9 550 m² |
|---|---|
| Omistus | Vuokrattu |
| Maanvuokraaja | Lahden kaupunki. |
| Kaavoitustilanne |
|
| Kaavoitustiedot | Lahden kaupunki. |
| Vuokra | 14 181,07 € / vuosi |
| Vuokra-aika päättyy | 31.05.2030 |
| Nimi | Asunto Oy Reppurinkulma |
|---|---|
| Taloyhtiössä sauna | Kyllä |
| Isännöitsijän tiedot | Lahden Team-Isännöinti Mika Elomaa p. 0415328546 |
| Huolto | Kukaon |
| Tehdyt remontit | 2003: Poistoilmakoneet. 2004: Ilmanvaihdon nuohous ja säätö. Käyttövesiputket. Saunat. 2007: Pikkutalon päädyn vesieristys ja pumppukaivo. 2008: Pääviemärin ja tuloveden tonttiliittymä. 2012: Pesutuvan maalaus. 2013: Kellarikäytävien maalaus ja sisäänkäyntien matot. Jätekatoksen lukollinen ovi. 2014: Rappukäytävien maalaukset A-, B-, C- ja D-raput. Yleisten tilojen LED-valaistus. Parvekekaiteet pinnoitettu profilipelleillä. 2015: Käytävämaalaus E ja F raput. 2016: Iv-kanavien nuohous ja säätö. Putkistokuvaus. Höyrystimien uusiminen kylmäkellariin. Pihakaivon tyhjennys ja uusi pumppu kaivoon. 2017: Asuntojen viemärikaivojen pinnoitus. 2018: Pohjaviemärit, tonttiliittymä, salaojat. Pihavalot, autopistoketolpat uusittin. pitkän talon sisäänkäyntien laatat uusittiin. Lämmönvaihdin. 2019: Painehuuhdeltiin viemärit ja kaikkien asuntojen vesikalusteet tarkastettiin. 2020: Väestösuojan tarkastus ja tiiveyskoe. Kuivaushuoneen ilmankuivain uusittiin. 2021: Väestösuojan padotusventtiili uusittiin. 2022: Lukituksen ja talon etuovien uusiminen. 2024: IV-kanavien nuohous. Kaikkien huoneistojen palovaroittimet uusittiin. |
| Tulevat remontit | Kunnossapitotarve seuraavien viiden vuoden aikana: Julkisivusaumaukset Huoneistokohtaisia märkätilakorjauksia Käyttövesiputkien uusiminen, viemäreiden sukitus. |
| Taloyhtiön autopaikat |
|
| Huoneistojen lukumäärä | 51 |
| Taloyhtiössä |
|
| Esittelyaika | 23.11. 14:00 - 14:15 |
|---|---|
| Esittelijä | Jannasch Tommy |
| p. | 0503059699 |
| Sähköposti | tommy@neliotliikkuu.fi |
| ensiesittely |
| Nimi | Jannasch Tommy |
|---|---|
| Sähköposti | tommy@neliotliikkuu.fi |
| Puhelin | 050 305 9699 |
| Yrityksen nimi | Neliöt Liikkuu LKV Oy Ab |
| Toimiston nimi | Neliöt Liikkuu LKV Oy Ab, Lahti |
| Yrityksen nimi | Neliöt Liikkuu LKV Oy Ab |
|---|---|
| Toimiston nimi | Neliöt Liikkuu LKV Oy Ab, Lahti |
| Osoite | Ahjokatu 4, Lahti |
| Toimiston puhelin | 0102481600 |
| Toimiston sähköposti | info@neliotliikkuu.fi |