Omakotitalo 5h,kx2,rt,kphx2,khh,2xwc
Iisakintie 5, Kulju, Lempäälä
Hinta
295 000 €
Koko
85 m² / 165 m²
Vuosi
1962
Kuljun rauhallisella ja pidetyllä alueella odottaa poikkeuksellisen monipuolinen omakotitalo, joka mukautuu erinomaisesti erilaisiin elämäntilanteisiin.
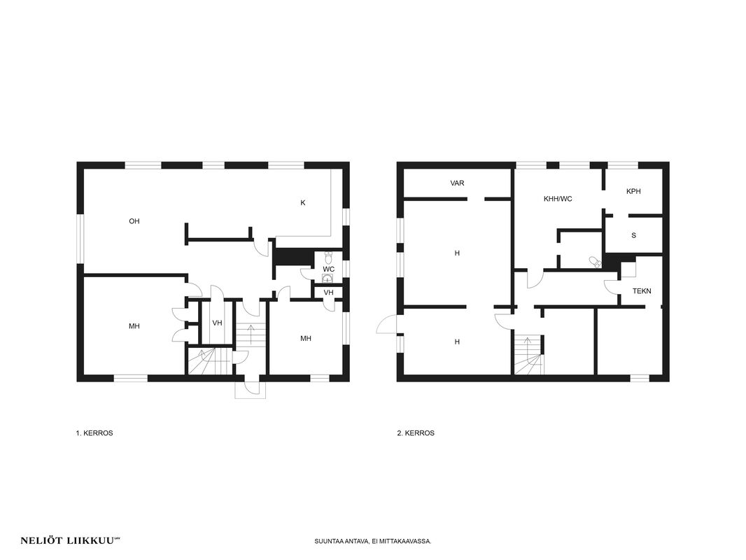
Tämä huolellisesti remontoitu kokonaisuus tarjoaa 85 neliötä varsinaista asuintilaa sekä lisäksi noin 80 neliötä muuta käyttötilaa kahdessa kerroksessa. Pohjaratkaisu on harvinaisen toimiva ja antaa mahdollisuuden esimerkiksi suuren perheen asumiseen, kahden sukupolven yhteiseen kotiin tai työn ja arjen erottamiseen omiin rauhallisiin tiloihinsa.
Kodissa on molemmissa kerroksissa oma keittiö, olohuone ja kylpyhuone, mikä tekee asumisesta joustavaa ja tarjoaa asukkaille poikkeuksellista yksityisyyttä. Tilat ovat valoisat, selkeät ja helposti muunneltavissa eri tarpeisiin. Arjen mukavuutta täydentävät sisäsauna sekä vuonna 2025 valmistunut upea pihasauna puukiukaalla, joka tuo kokonaisuuteen ripauksen ylellisyyttä ja vapaa-ajan tunnelmaa.
Teknisesti talo on erinomaisessa kunnossa. Vuosien 2021–2022 aikana on toteutettu laaja remonttikokonaisuus, jossa muun muassa öljylämmitys on poistettu, ikkunat uusittu, alakerta remontoitu kauttaaltaan, salaojat ja patolevyt tehty, sähköt uusittu, suurin osa käyttövesiputkista vaihdettu, viemäröintiä parannettu ja asuinkerroksen kylpyhuone saneerattu. Lämmitys hoituu energiatehokkaasti sähköllä ja ilmalämpöpumpulla.
Kokonaisuutta täydentää 1 200 neliömetrin kokoinen, oma ja tasainen tontti, joka on hyvin hoidettu ja tarjoaa runsaasti tilaa niin lasten leikeille, puutarhanhoidolle kuin rentoutumisellekin. Sijainti on rauhallinen mutta käytännöllinen, ja arki sujuu täällä vaivattomasti hyvien kulkuyhteyksien ansiosta.
Tämä koti tarjoaa harvinaisen yhdistelmän tilaa, toimivuutta ja huoletonta asumista, kokonaisuuden, joka kasvaa ja muuttuu elämäsi mukana.
Myynti ja lisätiedot
Piia Rosvall I Neliöt Liikkuu Lkv
044 7688109
piia.rosvall@neliotliikkuu.fi
| Kohdenumero | 21159498 |
|---|---|
| Sijainti | Iisakintie 5, 37560 Lempäälä |
| Huoneistoselitelmä | 5h,kx2,rt,kphx2,khh,2xwc |
| Huoneita | 5 h |
| Tyyppi | Omakotitalo (kiinteistö) |
| Asuintilojen pinta-ala | 85 m² |
| Pinta-alojen lisätiedot | Pinta-alat perustuvat myyjältä saatuihin tietoihin ja myyjän mittaamiin arvioihin. Pinta-aloja ei ole tarkistusmitattu, mitattaessa pinta-alat saattavat olla ilmoitettua suurempia tai pienempiä. Hinta ei ole pinta-alaperusteinen. Asuintilojen pinta-ala on arvioitu ja siihen on huomioitu kaikki asuinkäytössä olevat tilat, muihin tiloihin on laskettu kellarikerroksen tilat. |
| Kerroksia | 2 |
| Vapautuminen | sopimuksen mukaan |
| Kohteen kunto | Hyvä |
| Energialuokka | Ei lain edellyttämää energiatodistusta |
| Rakennusvuosi | 1962 |
| Käyttöönottovuosi | 1962 |
| Velaton hinta | 295 000 € |
|---|---|
| Myyntihinta | 295 000 € |
| Velkaosuus | - |
| Vuokrattu | Ei |
| Muut maksut/lisätietoa maksuista | |
|---|---|
| Kiinteistövero | 350 € / vuosi |
| Muut maksut | Sähkönkulutus 2024 13 000kwh/vuosi Jätehuolto paikallisen urakoitsijan taksoituksen mukaan. Esitetyt asumiskustannukset perustuvat nykykäyttöön ja voivat siten olla pienempiä tai suurempia,riippuen asukasmäärästä, asumistottumuksista sekä palveluntarjoajasta. |
|---|
| Lämmitysmuodot |
|
|---|---|
| Oma sauna | Kyllä |
| Sähköliittymä siirtyy | Kyllä |
| Antennijärjestelmä | Antenni |
| Tehdyt remontit | 2021-2022 Öljylämmitys poistettu Ikkunat uusittu Alakerta remontoitu Salaojat, patolevyt, maanvaihto Sähköt uusittu Lähes kaikki käyttövesiputket uusittu Pohjaviemäri Kylpyhuone uusittu asuinkerrokseen |
| Liikenneyhteydet | |
|---|---|
| Tie perille | Kyllä |
| Viemäri |
|
|---|---|
| Muu varustelu |
|
| Vesihuolto |
|
| Katto | |
|---|---|
| Kate | Konesaumapelto |
| Rakennusmateriaalit | |
|---|---|
| Rakennus- ja pintamateriaalien kuvaus | Puurunkoinen, rapattu |
| Käytetyt rakennusmateriaalit |
|
| Keittiö | |
|---|---|
| Keittiön varustelu | Molemmissa kerroksissa oma keittiö. |
| Keittiön muu varustelu |
|
| Liesi |
|
| Jääkaappi ja pakastin |
|
| Keittiön lattia |
|
| Keittiön seinät |
|
| Kylpyhuone | |
|---|---|
| Kylpyhuoneen kuvaus | Molemmissa kerroksissa oma kylpyhuone. Yläkerran kylpyhuone remontoitu 2021-2022 |
| Kylpyhuoneen varustelu |
|
| Kylpyhuoneen lattia |
|
| Kylpyhuoneen seinät |
|
| Sauna | |
|---|---|
| Saunan kuvaus | Alakerrassa sauna sekä erillinen upea pihasauna puukiukaalla |
| Kiuas |
|
| Saunan lattia |
|
| Saunan seinät |
|
| Makuuhuone | |
|---|---|
| Makuuhuoneen kuvaus | Yläkerrassa 2 makuuhuonetta, alakerrassa yksi huone |
| 3 | |
| Makuuhuoneen lattia |
|
| Makuuhuoneen seinät |
|
| Olohuone | |
|---|---|
| Olohuoneen lattia |
|
| Olohuoneen seinät |
|
| Pesutilat | |
|---|---|
| Pesutilojen lattia |
|
| Pesutilojen seinät |
|
| WC-tilat | |
|---|---|
| WC-tilojen kuvaus | Alakerrassa erillinen wc |
| WC-tilojen lattia |
|
| WC-tilojen seinät |
|
| Rakennusoikeus e-luku | 0.2 |
|---|---|
| Koko | 1 200 m² |
| Omistus | Oma |
| Kaavoitustilanne |
|
| Kiinteistötunnus | 418-424-9-1016 |
| Rakennukset |
|
| Nimi | Rosvall Piia |
|---|---|
| Sähköposti | piia.rosvall@neliotliikkuu.fi |
| Puhelin | 044 768 8109 |
| Yrityksen nimi | Neliöt Liikkuu LKV Oy Ab |
| Toimiston nimi | Neliöt Liikkuu LKV Oy Ab, Tampere |
| Yrityksen nimi | Neliöt Liikkuu LKV Oy Ab |
|---|---|
| Toimiston nimi | Neliöt Liikkuu LKV Oy Ab, Tampere |
| Osoite | Tampellan esplanadi 6 LH 3-4, Tampere |
| Toimiston puhelin | 0102481600 |
| Toimiston sähköposti | info@neliotliikkuu.fi |







































